家族のつながりを育む大きな吹抜けのあるお家

家族みんなが自然と顔を合わせるリビングに、豊かなコミュニケーションを育む大きな吹抜けのあるお家です。南向きの大きな窓から吹抜けを通して明るい光が差し込むリビングは、隣にインナーバルコニーがあり、開放感を感じながらゆったりとくつろげる心地よい空間です。吹抜けは空間に開放感をもたらすとともに、2階と3階をやさしくつないでくれます。3階ホールには造作カウンターを設けており、お子さまが勉強をしたり、在宅ワークにもピッタリです。リビングにいるご家族の気配を感じながら安心して過ごすことができ、「ごはんできたよ」とリビングから声をかけたり、日常のやりとりが自然にできる距離感も魅力です。光と開放感、そして家族のつながりを大切にした、心豊かに暮らせる住まいです。

WORKS
東大阪市

LIVONE 大蓮南2丁目Ⅳ7号地

    • 所在地

      東大阪市
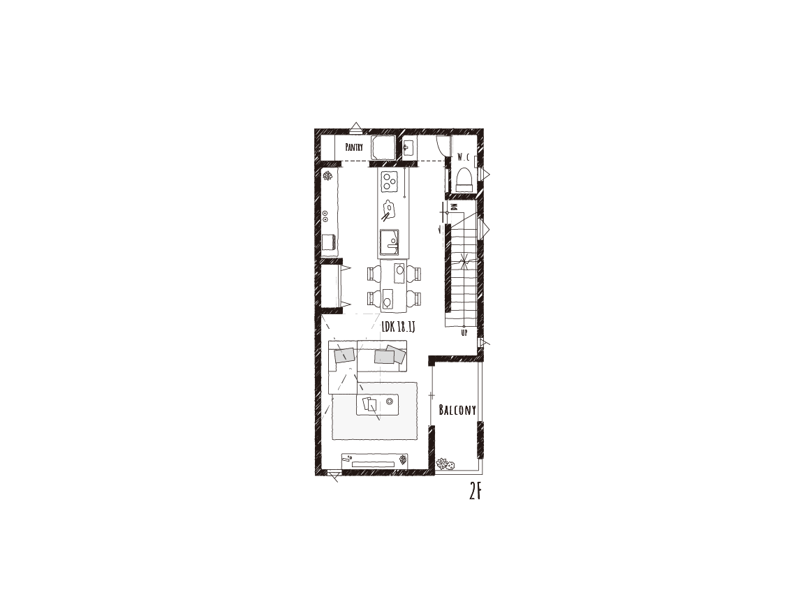
    • 間取り

      2LDK+S
    • 敷地面積

      70.00m²(21.17坪)
    • 延床面積

      103.28m²(31.24坪)
  • のびやかな暮らしを楽しむ吹抜けリビング

    隣にインナーバルコニーがあり、上部に大きな吹抜けを設けたリビングは、広々とした開放感に包まれます。南向きの大きな窓からは、やわらかな光がたっぷりと降りそそぎ、明るく心地よい空間を演出。さらに吹抜けを通して3階にいるお子さまの様子を伺いながら、安心してくつろぐことができます。

  • やわらかな雰囲気に包まれるキッチン

    フルフラットのキッチンは視界がひらけて開放感たっぷり。奥には冷蔵庫も収まるパントリーがあり、食材や日用品をまとめて収納できます。背面にはカウンタータイプのカップボードと、R形状が印象的な垂れ壁の下に棚を設け、お気に入りの食器や家電を飾りながらスッキリ片付きます。

  • 毎日が快適になる横並びダイニング

    キッチンとダイニングが横並びだから、配膳や後片付けがとてもスムーズ。お料理ができたらすぐにテーブルへ並べられます。食後の片付けもラクなので、家族みんなで自然にお手伝いしやすいのも嬉しいポイントです。さらにダイニングには収納スペースがあり、いつでもスッキリとした空間を保てます。

  • ちょうどいい距離感がうれしいワークスペース

    3階のホールにある、明るくて開放感のあるワークスペースです。ゆったり使えるワイドなカウンターだから、お子さまたちが仲良く勉強できます。吹抜けを通してリビングともつながっているので、家族の声や気配を感じながらも自分のことに集中できる、ほどよい距離感が心地よい空間です。

  • みんなで使えるファミリークローゼット

    3階のホールには、家族みんなで利用できるファミリークローゼットを設けました。洗濯物を一か所にまとめて収納できるので、家事の負担を大きく減らせます。普段使うものは各部屋に、季節の衣類や使用頻度の低いものはこのクローゼットに、と使い分けることで、暮らしがより快適になります。

PLANNING

LOCATION & ACCESS

〒577-0825 東大阪市大蓮南2丁目22-17付近
TOP