居心地のいいワークスペースがあるお家

家族とのひとときを大切にしながら、毎日の家事を無理なくこなせる工夫を取り入れたお家です。室内はナチュラルモダンをベースに、やさしく落ち着いた印象にまとめました。リビング・ダイニング・キッチンがほどよくつながり、料理をしながらでも家族の気配を感じられる間取りです。キッチンとダイニングは横並びの配置で、料理の配膳や後片付けの動きもスムーズ。1階の洗面室とランドリールームもセパレートにすることで、家事がスムーズに行えるよう配慮しました。ダイニングの隣にはL字型カウンターを備えたワークスペースを設け、家事の合間に一息ついたり、お子さまのスタディスペースとしても幅広く活用できます。毎日の動きが整う、暮らしの中にゆとりを感じられる住まいです。

WORKS
大阪市大正区

LIVONE 平尾3丁目2期2号地

    • 所在地
      大阪市大正区
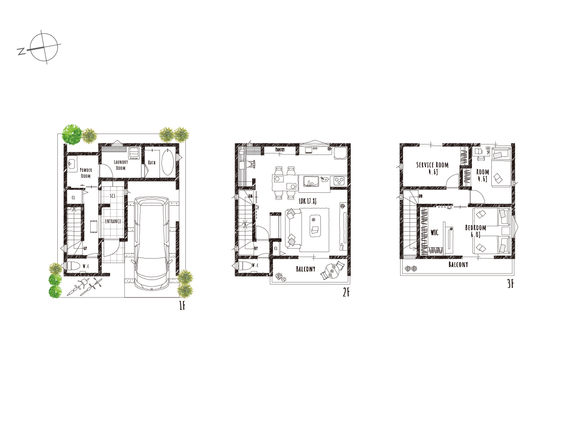
    • 間取り
      2LDK+S
    • 敷地面積
      58.35m²(17.65坪)
    • 延床面積
      95.01m²(28.74坪)
  • 暮らしに寄り添うワークスペース

    ダイニング横のワークスペースには、使いやすいL字型カウンターと4段の可動棚を設置しました。料理の合間にレシピを調べたり、家事の途中にちょっと休んだりと、気軽に使えます。お子さまのスタディコーナーとしても使いやすく、料理をしながら勉強する様子をそばで見守ることができます。
    ※画像はイメージパースです。

  • 家族がくつろぐ工夫がいっぱいのリビング

    リビングに入ってすぐの場所に収納スペースを設けました。帰宅後はカバンや小物をさっと置いて、まずはリビングでひと息。自分の部屋へ向かう時に荷物を持っていけます。テレビ上部の間接照明が空間をやさしく照らし、落ち着いた時間を演出。暮らしにゆとりが生まれ、心地よく過ごせるリビングです。
    ※画像はイメージパースです。

  • 配膳も片付けもスムーズな横並びキッチン

    フラットな天板を採用したキッチンは、ダイニングと横並びの配置で、料理の配膳や後片付けがスムーズに行えます。キッチンのすぐそばにはパントリーを設け、食品や日用品をまとめて収納できます。ワークスペースやリビングにも近く、料理をしながらでも家族の気配を感じられるキッチンです。
    ※画像はイメージパースです。

  • セパレートにした洗面室とランドリールーム

    使い勝手に配慮して、洗面室とランドリールームを分けました。洗面台はワイドなカウンターで、スキンケアやメイクをゆったり行えます。ランドリールームには室内物干しとカウンターを備え、雨の日でも安心して洗濯できます。カウンターでは洗濯物をたたむ、アイロンをかけるなどの作業を行えます。
    ※画像はイメージパースです。

  • 奥行きのある2WAY仕様の玄関

    玄関にゆとりある奥行きを持たせました。奥側はシューズクローゼットを兼ねた、土間続きの家族用玄関になっています。土間続きなので、靴だけでなくガーデニング用品やアウトドアグッズの収納にも便利です。家族用と来客用を分けて使えるため、見せたくないものは奥にしまうことができます。
    ※画像はイメージパースです。

  • 心地よい光と風に包まれるゆとりの主寝室

    間口いっぱいに広がるワイドなバルコニーに面した、開放感に包まれる気持ちのいい主寝室です。またウォークインクローゼットを設置し、洋服や小物から、スーツケースなど大きなものまでたっぷり収納できます。扉のないオープンタイプのため、出し入れがしやすく、身支度もスムーズに整います。
    ※画像はイメージパースです。

PLANNING

LOCATION & ACCESS

〒551-0012 大阪市大正区平尾3丁目10番6号付近