家具付きで明るい南向き!2階水廻りで家事ラク◎
広々洗面室で室内干し可能♪
安心の定期点検10年間!
【LIVONE平尾2丁目3期】
~やさしい光に包まれて暮らせる南向きのお家~
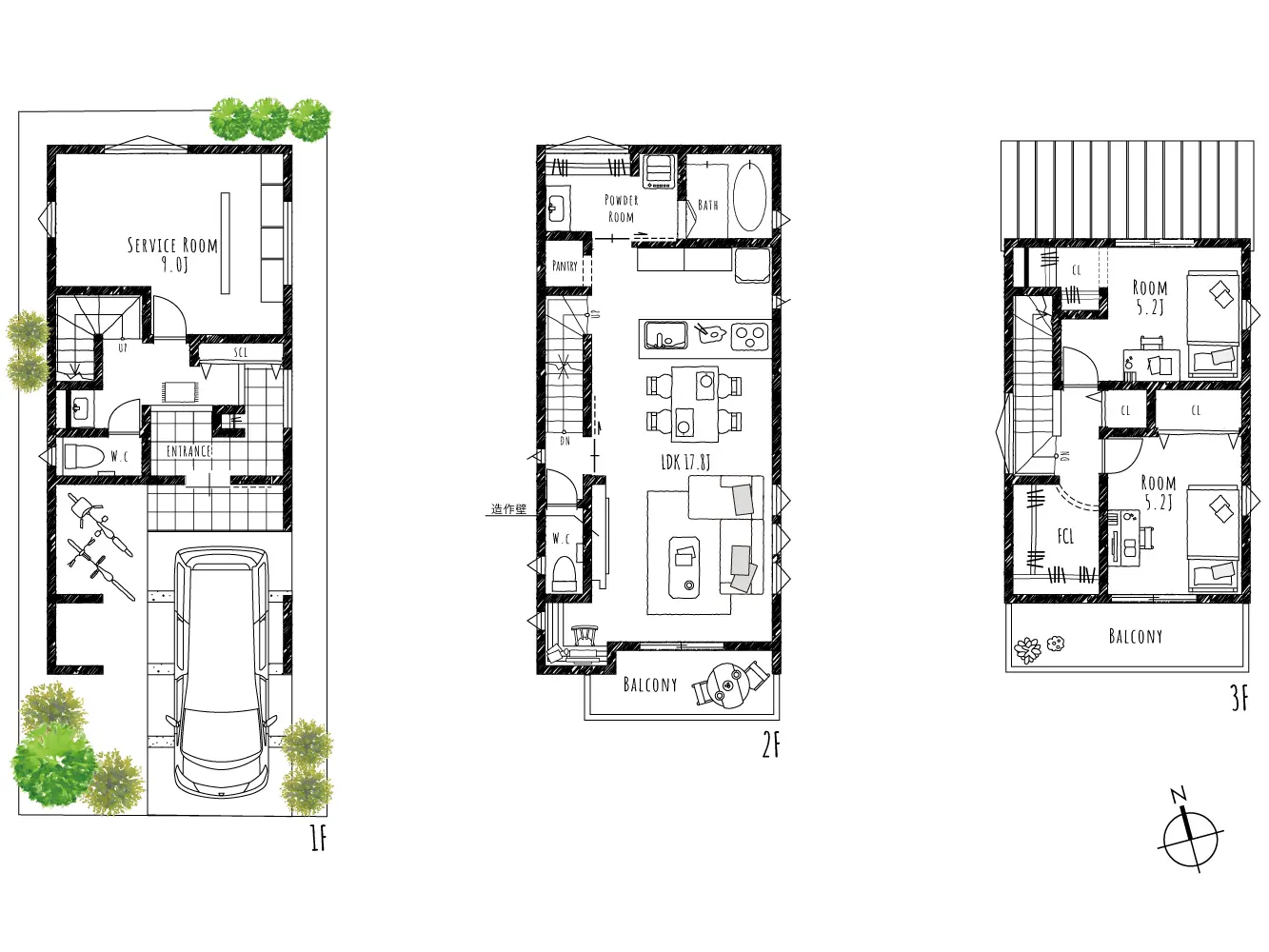
■明るくゆとりのある住まい■
・広々2WAY玄関!
・玄関上がってすぐにセカンド洗面♪
・ウォークインクローゼットやパントリー、ファミリークローゼットなど各階の収納も充実◎
・LDK内にスタディコーナー有!
■地震、省エネ対策◎■
・耐震等級2×制震ダンパーで安心のお家
・ZEH水準で省エネ・高断熱の住まい◎
■家族みんながうれしい立地■
・サンディ大正小林店まで徒歩8分
・平尾小学校まで4分!大正中央中学校まで9分!
・周辺には複数の公園があり、お子さまと一緒に遊べます♪
・週末はイオンや大型公園などお出かけスポットも多数♪
※掲載の徒歩分数は80m、自転車分数は250m、
車分数は400mを1分として算出した概算時間です。
南向きで前道が広いため開放的な土地です!休日はイオンモール大阪ドームシティやIKEA鶴浜でショッピングを楽しめ、周辺には大きめの公園も複数あるので、体を動かしながらお子さまと一緒に遊べます!


ご予約いただくと、事前にスタッフがスケジュールを調整し、ご案内させていただきます。お待ちいただくこともございませんので、ご予約ください。もし都合が悪くなれば、前日までにお伝えいただければ、代わりの日程を調整させていただきます。

近隣の分譲物件情報や家づくりの資料などをご予約時にお渡しさせていただきます。モデルハウスを見学いただいた後、ご自宅でじっくりと家づくりについてお話をいただくことができます。

ご来場予約をいただいた方に、QUOカードを進呈しています。モデルハウス見学後に、使っていただいてもOK。
※ご家族様1回限りとなります。またモデルハウス見学アンケートにご記入いただくことが条件となります。
| 物件種別 | 新築一戸建て(ご見学・入居可能) |
|---|---|
| 所在地 | 大阪市大正区平尾2丁目6番8号 付近 |
| 主要交通 | JR大阪環状線・大阪メトロ長堀鶴見緑地線「大正」駅 自転車13分(3100m) |
| その他交通 | 大阪シティバス「平尾1丁目」停 徒歩2分、JR大阪環状線「大正」駅 バス14分 |
| 総区画 | 1区画 |
| 販売区画数 | 1区画 |
| 敷地面積 | 80.23㎡(24.26坪) |
| 延床面積 | 104.12㎡(31.49坪) |
| 間取り | 2LDK+S |
|---|---|
| 構造・工法 | 木造3階建て |
| 駐車場 | 1台 |
| 建ぺい率 | 80% |
| 容積率 | 200% |
| 地目 | 宅地/平坦 |
| 用途地域 | 第一種住居地域 |
| 道路 | 区画図をご参照ください |
| 設備仕様 | 公営水道、本下水、都市ガス |
| 引渡時期 | 即引渡可 |
| 完成時期 | 2025年10月完成済 |
| 権利形態 | 所有権 |
| 取引形態 | 売主 |
| 建築確認番号 | 第R07確認建築PLN橿本0039号(2025年4月23日) |
| その他の制限 | 準防火地域 |
| 情報公開日 | 2026年4月29日 |
| 次回更新予定日 | 2026年5月10日 |