北摂・豊中、公園隣接の豊かな住環境!
阪急「豊中」駅・北大阪急行「桃山台」駅の2WAYアクセス♪
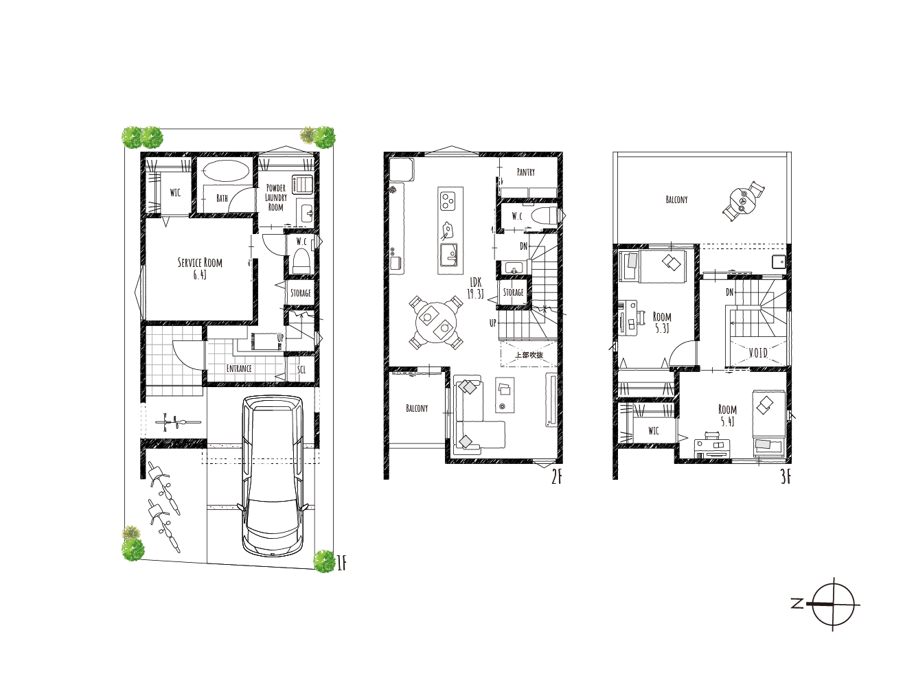
【LIVONE熊野町2丁目1.2号地】
~空とつながるアウトドアリビングのあるお家~
■物件の魅力ポイント
広々としたバルコニーでは、アウトドアリビングとしての時間も楽しめます♪
約19帖のLDKにはぐるりと回遊できるキッチンを採用!
■安心の耐震・省エネ性能
・耐震等級2×制震ダンパー採用で安心・安全
・ZEH水準で省エネ・高断熱の生活環境を実現
【みらいエコ住宅2026事業対象物件】
■暮らしやすい住環境
・いかりスーパーマーケット豊中店まで徒歩6分
・熊野田小学校まで7分
・週末はららぽーとエキスポシティや服部緑地など、お出かけスポットも多数♪
※掲載の徒歩分数は80m、自転車分数は250m、
車分数は400mを1分として算出した概算時間です。
学校やスーパー、ドラッグストアやコンビニなどが徒歩圏内にあり、家族みんなにうれしい立地です♪周辺にはイオンモール伊丹やららぽーとエキスポシティ、服部緑地などがあり、ご家族で休日を楽しめます!


ご予約いただくと、事前にスタッフがスケジュールを調整し、ご案内させていただきます。お待ちいただくこともございませんので、ご予約ください。もし都合が悪くなれば、前日までにお伝えいただければ、代わりの日程を調整させていただきます。

近隣の分譲物件情報や家づくりの資料などをご予約時にお渡しさせていただきます。モデルハウスを見学いただいた後、ご自宅でじっくりと家づくりについてお話をいただくことができます。

ご来場予約をいただいた方に、QUOカードを進呈しています。モデルハウス見学後に、使っていただいてもOK。
※ご家族様1回限りとなります。またモデルハウス見学アンケートにご記入いただくことが条件となります。
| 物件種別 | 新築一戸建て(建築中) |
|---|---|
| 所在地 | 豊中市熊野町2丁目2番17号 付近 |
| 主要交通 | 北大阪急行電鉄「桃山台」駅 自転車8分(1800・1810m) |
| その他交通 | 阪急宝塚線「豊中」駅 自転車9分(2100・2110m) 阪急バス「熊野町」停 徒歩2分(130・140m)、 北大阪急行電鉄「桃山台」駅まで乗車13分・阪急宝塚線「豊中」駅まで乗車23分 |
| 総区画 | 2区画 |
| 販売区画数 | 2区画 |
| 敷地面積 | 1、2号地/80.00㎡(24.20坪) |
| 延床面積 | 1号地/102.05㎡(30.87坪) 2号地/101.55㎡(30.71坪) |
| 間取り | 1号地/3LDK+S 2号地/2LDK+S |
|---|---|
| 構造・工法 | 木造3階建て |
| 駐車場 | 1台 |
| 建ぺい率 | 60% |
| 容積率 | 200% |
| 地目 | 宅地/平坦 |
| 用途地域 | 第一種中高層住居専用地域 |
| 道路 | 区画図をご参照ください |
| 設備仕様 | 公営水道、本下水、都市ガス |
| 引渡時期 | 2026年9月初旬予定 |
| 完成時期 | 2026年9月初旬完成予定 |
| 権利形態 | 所有権 |
| 取引形態 | 売主 |
| 建築確認番号 | 1号地/第HK26-0019号(2026年4月7日) 2号地/第HK26-0020号(2026年4月7日) |
| その他の制限 | 第2種高度地区、建築基準法第22条区域 |
| 情報公開日 | 2026年5月19日 |
| 次回更新予定日 | 2026年6月2日 |