「寝屋川市」駅徒歩10分。
吹抜けから差し込む光が、住まい全体にやわらかな明るさと落ち着きをもたらします。
【LIVONE長栄寺町2期】
~趣きと開放感が調和する余白を楽しむお家~
■明るく開放的な暮らし
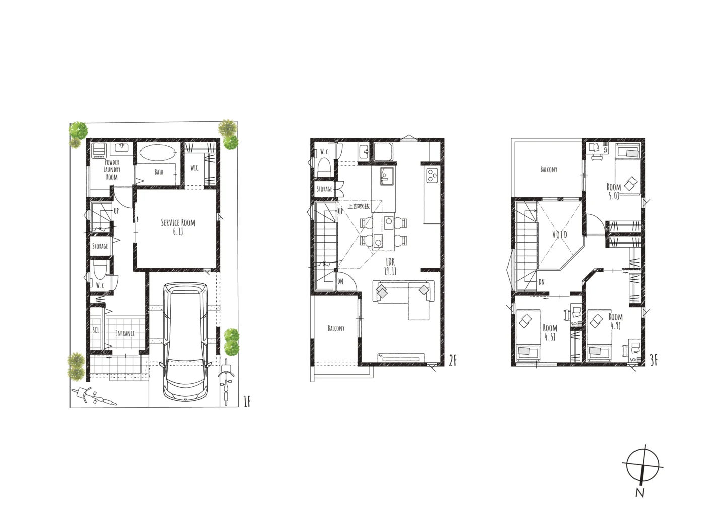
約19帖のゆとりあるLDKに、作業効率にも配慮したⅡ型キッチンを採用しました。
2階にセカンド洗面を設け、忙しい朝の身支度にもゆとりが生まれる、暮らしやすさにこだわった住まいです。
■安心の耐震・省エネ性能
・耐震等級2×制震ダンパー採用で安心・安全
・ZEH水準で省エネ・高断熱な生活環境を実現!
■暮らしやすい住環境
・京阪本線「寝屋川市」駅まで徒歩10分
快速急行も利用できる便利な駅です♪
・スーパー万代まで徒歩7分
・寝屋川市立桜小学校まで徒歩13分、寝屋川市立第二中学校まで徒歩7分
・週末はイオンモール四條畷や寝屋川公園など、おでかけスポットも多数♪
※掲載の徒歩分数は80m、自転車分数は250m、
車分数は400mを1分として算出した概算時間です。
スーパー、ドラッグストア、小学校、コンビニなどが徒歩圏内で、ご家族みんなにうれしい立地です。周辺には公園も多数♪お休みの日はイオンモール四条畷や寝屋川公園でお買い物や映画鑑賞を楽しめます!


ご予約いただくと、事前にスタッフがスケジュールを調整し、ご案内させていただきます。お待ちいただくこともございませんので、ご予約ください。もし都合が悪くなれば、前日までにお伝えいただければ、代わりの日程を調整させていただきます。

近隣の分譲物件情報や家づくりの資料などをご予約時にお渡しさせていただきます。モデルハウスを見学いただいた後、ご自宅でじっくりと家づくりについてお話をいただくことができます。

ご来場予約をいただいた方に、QUOカードを進呈しています。モデルハウス見学後に、使っていただいてもOK。
※ご家族様1回限りとなります。またモデルハウス見学アンケートにご記入いただくことが条件となります。
| 物件種別 | 新築一戸建て(建築中) |
|---|---|
| 所在地 | 寝屋川市長栄寺町10番5号 付近 |
| 主要交通 | 京阪本線「寝屋川市」駅 徒歩10分(790m) |
| その他交通 | 京阪本線「萱島」駅 自転車11分(2600m) |
| 総区画 | 1区画 |
| 販売区画数 | 1区画 |
| 敷地面積 | 71.08㎡(21.50坪) |
| 延床面積 | 103.08㎡(31.18坪) |
| 間取り | 3LDK+S |
|---|---|
| 構造・工法 | 木造3階建て |
| 駐車場 | 1台 |
| 建ぺい率 | 60% |
| 容積率 | 200% |
| 地目 | 宅地/平坦 |
| 用途地域 | 第二種住居地域 |
| 道路 | 区画図をご参照ください |
| 設備仕様 | 公営水道、本下水、都市ガス |
| 引渡時期 | 2026年10月上旬予定 |
| 完成時期 | 2026年10月上旬完成予定 |
| 権利形態 | 所有権 |
| 取引形態 | 売主 |
| 建築確認番号 | 第総合26-0006号(2026年4月22日) |
| その他の制限 | 準防火地域 |
| 情報公開日 | 2026年5月19日 |
| 次回更新予定日 | 2026年6月2日 |