間接照明のくつろぎリビングがある家

一日の終わりを家族みんなでゆったりと過ごせるよう、LDKの照明にこだわったちょっぴり大人なお家が完成しました。リビングはダウンライトと間接照明で、家族が『集まる時』『くつろぐ時』など生活シーンに合わせて演出。ワークスペースとして、家族みんなで使えるダイニング横の『スタディカウンター』と、静かに集中して仕事ができるよう、リモートワークや家事室として使える『書斎』を備えました。また収納は、キッチンのカップボード、リビングの収納棚、浴室の可動棚など各所にたっぷり用意したので、モノで溢れかえることなくスッキリ暮らすことができます。外観はブラックをベースに木目調をアクセントにしたシンプルなたたずまい。内装はクロスに木目調やタイル柄・グレーをアクセントにした、落ち着いた心地よい空間のお家です。

WORKS
THANK YOU

MODEL HOUSE 109

    • 所在地

      THANK YOU
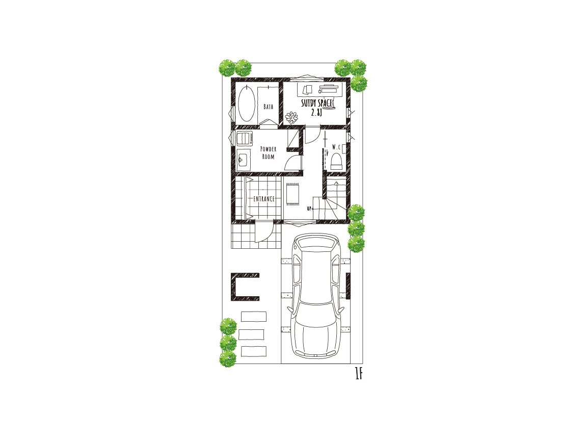
    • 間取り

      2LDK+2S
    • 敷地面積

      60.78m²(18.38坪)
    • 延床面積

      95.60m²(28.91坪)
  • くつろぎリビング

    リビングは、テレビボード上に明るさを調節できる間接照明とダウンライトを取り入れ、くつろぎ空間を演出。生活シーンに合わせて明るさや色を使い分けることができます。テレビは壁掛けが出来、フロートテレビボードを設けたので、コード類でごちゃつくことなくスッキリ。コードにたまるホコリ問題も解消し、掃除機がけも、ふき掃除も楽ちんです。テレビ横には収納棚を備え、DVDやゲーム機などすぐに片付けられるようにしました。リビング空間がより映えるように、TVの背面には濃いグレーのアクセントクロスを施しました。

  • 使いやすい対面キッチン

    LDK空間にメリハリを感じることができるよう、キッチン上部を折下げ天井にしました。ダクトレールを設け、スポットライトやペンダントライト、グリーンや小物など、好みに合わせてインテリアを楽しむことができます。また、キッチンの扉柄と合わせ、統一感を持たせたカップボードを備えました。大容量なので、食器だけでなく、食品ストックやキッチン用品までたっぷり収納できます。壁面はグレーのタイル調クロスでおしゃれに。こだわって選んだ家電を並べたら、より引き立ちます。家族と会話をしながら、楽しくキッチン立つことができる対面式なので、リビングにいる子供の様子も見れて安心です。

  • LDKのスタディカウンター

    ダイニング横には、家族みんなで使えるカウンターを設けました。壁面には有孔ボードがあり、お気に入りのインテリアを飾ったり、細々した文房具などを掛けて収納できます。リビングから見えない場所に可動棚を設けたので、学校からのプリントなど日々増える書類の収納場所にぴったりです。キッチンでお料理をしていても自然と目が届くので、お子さまは勉強に集中することができ、分からないことがある時にはすぐにかけつけられますね。

  • 洗面室の可動棚

    お風呂から出て、さっとワンアクションでタオルをとり体を拭けるように、洗面室にはオープンタイプの可動棚を設けました。棚のレイアウトを自由に変えられ、たっぷり収納できるので、家族それぞれの下着やパジャマなどの着替えも収納できますね。シャンプーやボディソープといった消耗品をストックする場所や、スマホやメガネといった小物を置く場所など、用途に合わせて使いやすい高さに調整できます。

  • 書斎スペース

    1階に仕事や趣味に集中できる、約3帖の書斎を設けました。リモートワークなど家で仕事をする時に、ご家族と距離を置いて静かに時間を過ごせる空間となっています。「仕事専用の部屋」があることで気持ちを切り替えやすく、背後も気にならないので、zoomなどのリモート会議も安心して対応できますね。丁度よい広さなので、趣味のお部屋として壁一面を本棚にして読書スペースにしたり、好きなものを集めたコレクションルームにするのも◎

  • たっぷり収納

    子供部屋は2部屋とも、さわやかなストライプのクロスを使用したウォークインクローゼットを備え、楽しくお片付けをしてもらえるようにしています。主寝室には腰壁で空間を区切った、余裕がある広さのウォークインクローゼットと、ママにうれしいドレッサーコーナーを設けました。寝る前にじっくりお肌のお手入れをしたり、お出かけ時には横のクローゼットで服を選びながらヘアメイクができます。各所に収納を多くとった、片付けやすいお家です。

The Architect’s Voice

リビングテレビボード上の間接照明は、使い方に合わせて明るさを調節することができます。フロートテレビボードを設置し、テレビを壁掛けできるようにすることで、配線をなくしたすっきりとした空間でくつろいでテレビが見れるようにしました。リビングのデザイン性を良くするため、スタディーコーナーとのバランスに気を配り、ものが放置されて生活感が出ないようにしています。

TOP