白を基調にしたシンプルな内装で『すっきり』、スキップフロアで『抜け感』が感じられるお家が完成しました。空間を高低差やスタディカウンターでゆるく仕切ることで「開放的」に、収納も兼ね備えたリラックスベンチで「居心地良く」、様々な動きで空間に変化をつけました。忙しいくらしの中、家事や生活が時短できるよう、「洗濯が1か所で済む洗濯室」や「料理や家事をしながら、家族の様子が伺えるキッチン」「出かける準備のしやすいクローゼット」など、たくさんの工夫を散りばめました。シンプルをテーマにしたお家ですが、寝室のクローゼット入口をR垂れ壁にしたり、キッチンには天然石を組み合わせたタイルを施し、リビングの床だけ少し濃い目の突板のフローリングにするなど、さりげないディティールにこだわり、住むほどに人に寄り添う、そんなお家にしています。
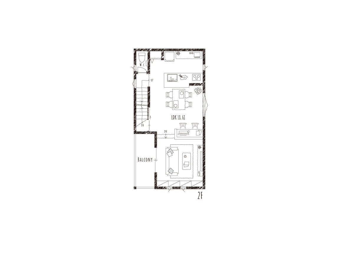
壁と天井は白でシンプルにまとめ、リビング部の天井を2.7mと高くし、リビングとダイニングをスキップフロアでタテに仕切ることで、開放感を感じられようにしています。階段部分にしつらえたスタディカウンターは見晴らしも良く、キッチンからもリビングからも様子がうかがえ、子どもの勉強にも、ちょこっと作業する時にも便利なスペースに。高さをずらすことで、家族がおなじ空間で過ごしながらも、ほどよい距離感で、心地よく過ごせるようにしています。
リビングの窓辺にしつらえた、多目的に楽しめるくつろぎスペース。約3mの引き出し付きのベンチは、しっかり収納力も備わっており、お昼寝用のブランケットや、子どものおもちゃをしまったり、よく使う書類や本もたっぷり収納。しまいやすく、取り出しやすい引き出しがあることで、物の多いリビングもすっきり。子どもと本を読んだり、まったりお茶を飲んだり、いろいろ使える癒しの場所にしています。
洗濯時間を少しでも短縮できるよう、乾太くん(ガス乾燥機)を「スライド天板付きの設置棚」に据え、乾燥機から出したものをすぐ畳めるようにしました。乾燥機にかけたくない、大事なお洋服や大きなものは、すぐ横の「室内物干し」や「浴室乾燥機」に干せばOK。洗濯室内にタオルや下着類など、お風呂上がりに必要なものをしまえる「可動棚」も備え、『干す・乾かす⇒畳む⇒しまう』までの動線を短くし、家事の時間を短縮できるようにしています。
広い間口の土間玄関と開放感ある玄関ホールは、ベビーカーや自転車など、外で使うものもラクに置けるスペースにしています。壁面にはお気に入りの雑貨やグリーンを飾れる飾り棚とブラケットライトを施し、階段下には可動棚をご用意。家族が毎日使い、お客様からも見られる場所を、おしゃれで使いやすくしています。
スキップフロアの上部に設置することで視界がひらけた、開放感抜群の対面式フラットキッチン。目の前がダイニングになっているので、配膳や後片付けもしやすく、家族も料理やお手伝いに参加しやすいつくり。背面にはカップボードやパントリーもあり、作業場所や食器・食材の置場にも困らずスッキリ。カップボード上部には、天然石のタイルを配し、スモーキーなやさしい色目と素材感でおしゃれなアクセントにしています。
3F主寝室にはウォークインクローゼットの横に、身支度しやすいカウンターを設けました。外出前のスタイルを決めながらメイクや髪を整えられる空間は、朝の身支度をワンコーナーでシンプルに済ますことが出来ます。
フラットサイディング× 打ちっぱなし調のサイディングでシンプルで無機質なイメージに。片流れ屋根に直線的なシルエットで、スタイリッシュなデザイン。全体的に白で統一し、さわやかで都会的な印象に仕上げています。
お客様を迎える玄関ホールなど、全体的に空間を広く取りました。洗濯の家事に至っては、1カ所で行えるようにしています。また、LDKは約19帖と広くし、スキップフロアで縦に変化をつけました。家族皆が自然に集まるLDKで、ゆっくりとくつろいで下さい。(設計担当:國近)
動きのある開放的な空間だったので、突板のフローリングや、キッチンのタイルなど、細部にこだわり、それらを引き立たせる様、内装はシンプルにまとめました。どのスタイルの家具を置いても空間に馴染むような、住む人に寄り添うお家です。ぜひ、お気に入りの家具を置いて、あなた好みの素敵な空間にしてください。(コーディネート担当:塩田)
