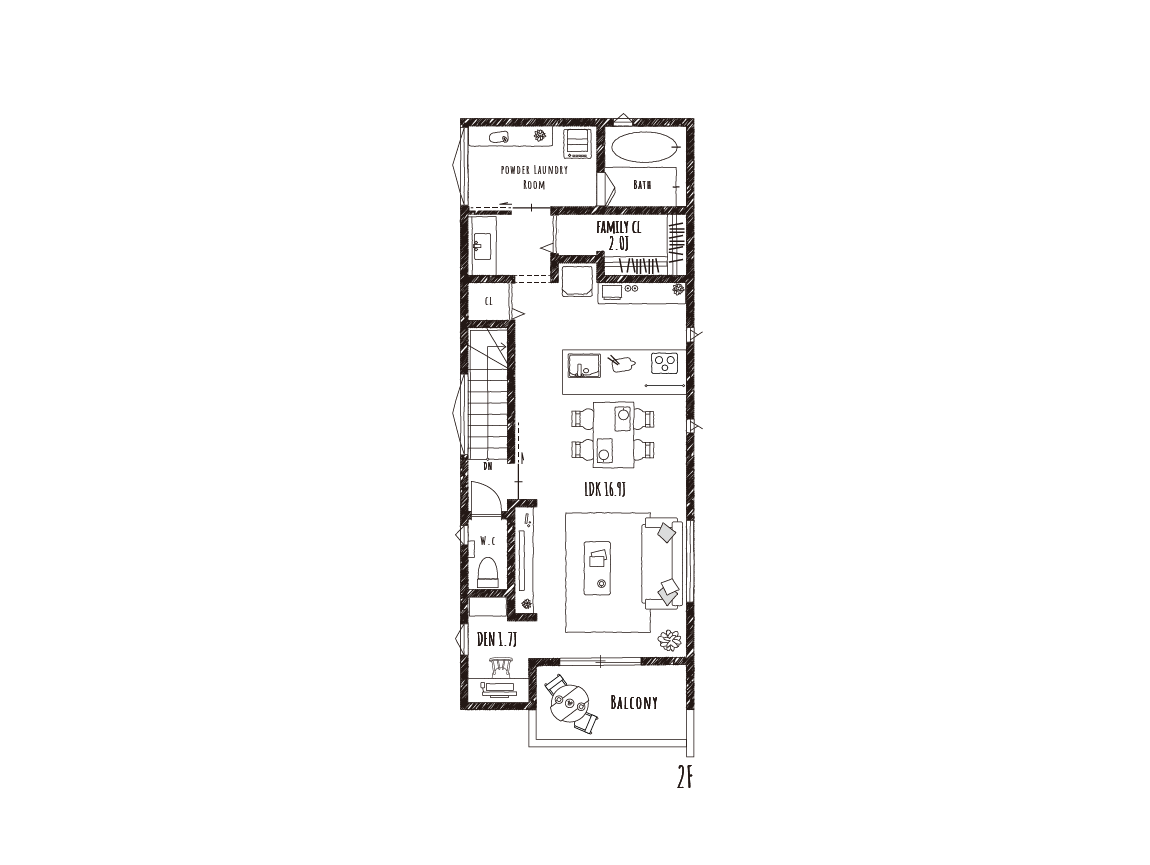
快適な水廻り動線と豊かな収納力、2階LDKの陽光溢れる家

ゆったりくつろげる2階のリビングに、家族みんなが自然と集まるお家です。天井の高さが最大約2.8mにもなる勾配天井が開放感をもたらし、南向きのバルコニーからは明るい光が差し込みます。また、リビングの一角には造作のカウンターを備えた、ちょっとこもれる書斎スペースをご用意しました。ほどよい仕切りがあり、集中したいときにも心地よく過ごせます。ファミリークローゼットは洗面室とつながっているので、お風呂上がりの着替えや朝の身支度もスムーズです。さらに、ランドリールームを独立させることで、洗濯も快適に。室内物干しや家事をこなせるカウンターもあり、家事の時短にもつながります。毎日の暮らしを心地よく、快適にする工夫が詰まった住まいです。

WORKS
THANK YOU

MODEL HOUSE 192

    • 所在地

      THANK YOU
    • 間取り

      1LDK+2S
    • 敷地面積

      90.51m²(27.37坪)
    • 延床面積

      95.63m²(28.92坪)
  • 南側にバルコニーのある明るいリビング

    2階にLDKを配置することで生まれた、のびやかな勾配天井のリビング。最大約2.8mの天井高が開放感を生み、南向きバルコニーから降りそそぐ光が、いつも明るく心地よい空間を演出します。自然の光と風を感じながら、家族みんながくつろげる特別なひとときを過ごせる空間です。

  • おこもり感のある書斎スペース

    リビングの一角にある、ホッとできる空間。造作のカウンターの上や背面には棚があるので、本や仕事道具もすっきり片付きます。垂れ壁でほどよく仕切られているので、おこもり感もあります。読書や仕事に集中したいときも、ちょっとひと休みしたいときも、心地よく過ごせます。

  • 洗面室からつながるファミリークローゼット

    忙しい毎日をちょっとラクにする、便利なファミリークローゼット。洗面室から直接出入りできるので、朝の身支度やお風呂上がりの着替えがラクラク。家族全員の下着やパジャマを収納しておけば、わざわざお部屋に取りに行く手間が省け、スムーズに入浴できる快適な動線を実現します。

  • 毎日の洗濯がラクになるランドリールーム

    ランドリールームと洗面室を分けることで、みんなが使いやすい空間にしました。洗面室には室内物干しがあるので、雨の日や夜遅い時間でも安心して洗濯ができます。さらに、洗濯物を畳んだりアイロンがけができるカウンターもご用意しているので、この場所で洗濯の作業が完結できます。

  • ご家族を優しく迎える玄関ホール

    玄関の扉を開けると、ゆったりとした奥行きのあるホールが広がります。お子さまと並んで靴を履けるL字型の上り框は、ゆとりある広さで忙しい朝もスムーズに準備ができます。シューズクローゼットには家族みんなの靴をしっかりと収納でき、いつもスッキリとした空間を保てます。

  • ウォークインクローゼットのある主寝室

    主寝室の入口部分からウォークインクローゼットにかけては下がり天井になっていて、空間に奥行きを感じさせてくれます。たくさんの洋服を収納できる大きなウォークインクローゼットは、お気に入りの洋服や小物をすっきり整理整頓できて取り出しやすく、身支度も楽にできます。

TOP