家族がつながる開放的な吹抜けのあるお家

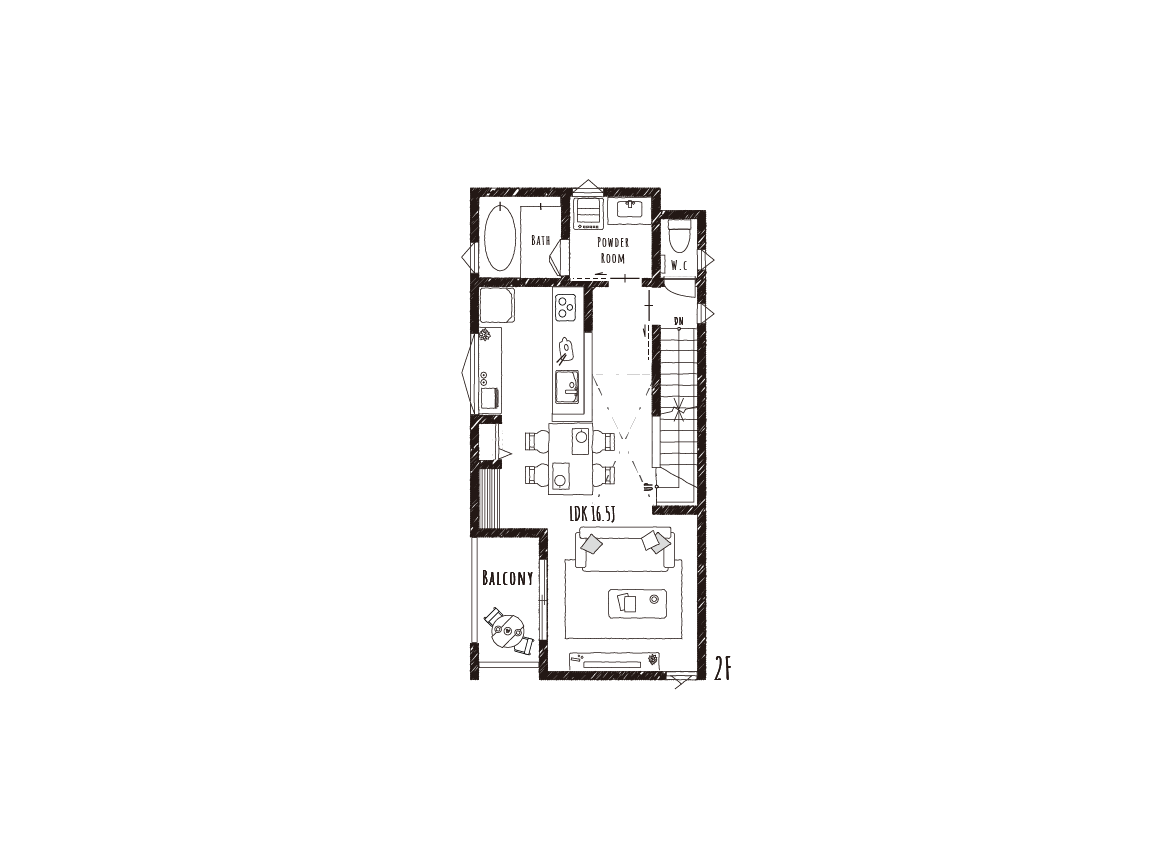
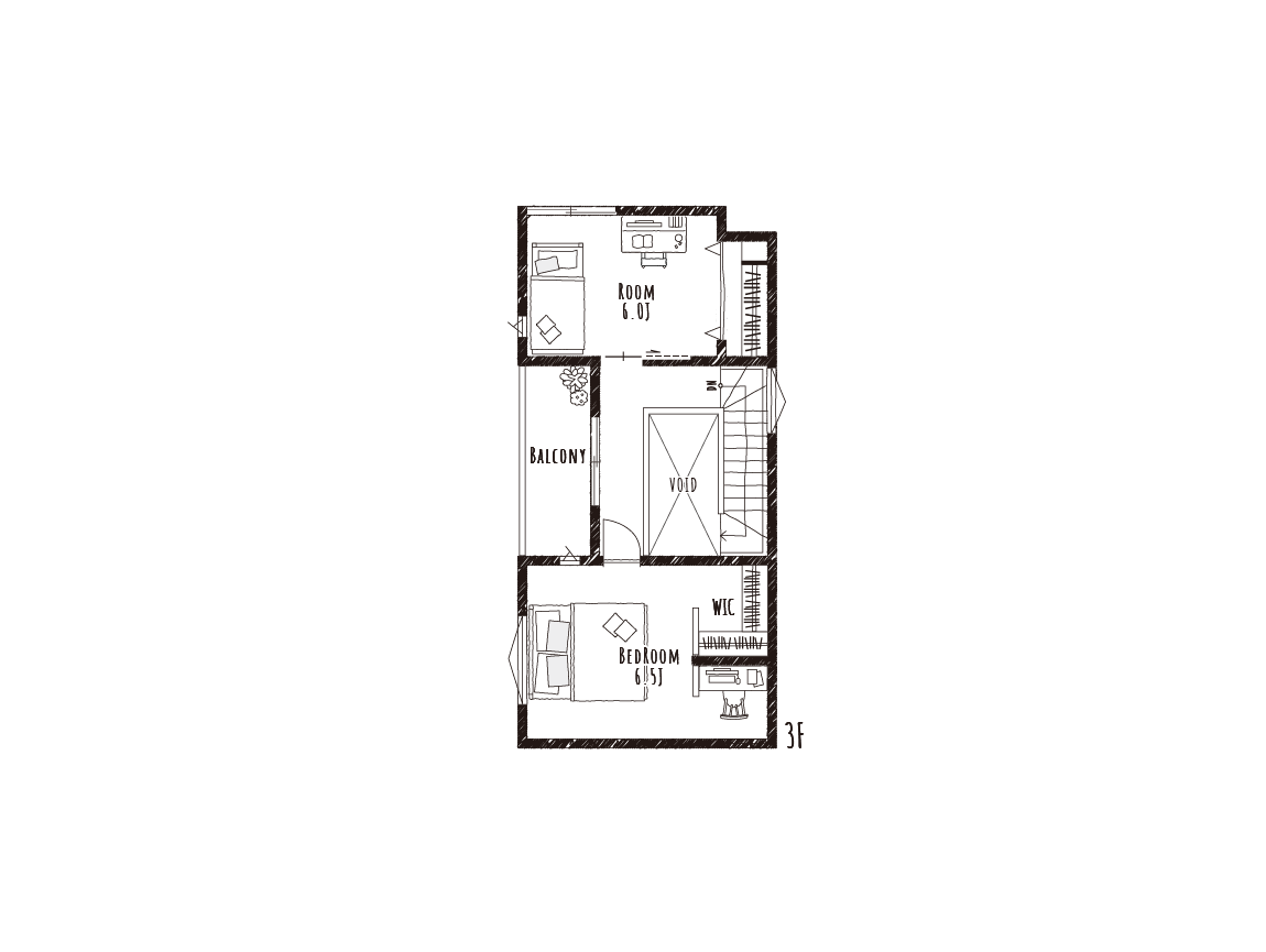
暮らしの中心となる2階のLDKに吹抜けを設けた、家族の気配をいつでも身近に感じられる住まいです。家族が集まるLDKにはリビング階段を採用し、行き来するたびに顔を合わせることで、自然と会話が生まれるあたたかい空間となっています。キッチン横に設けた造作のカウンターは、お子さまの勉強スペースやちょっとした作業コーナーにピッタリ。料理をしながらも、お子さまの様子を見守ることができて安心です。また、吹抜けにつながる3階の廊下にはブラックのアイアン手すりを採用し、視界が開けた、より広がりのある空間を演出しています。さらに、その廊下からはバルコニーへ出られるため、使い勝手の良さも魅力です。家族のつながりを大切にした、心地よい空間が広がる住まいとなっています。

WORKS
THANK YOU

MODEL HOUSE 195

    • 所在地

      THANK YOU
    • 間取り

      3LDK
    • 敷地面積

      64.90m²(19.63坪)
    • 延床面積

      99.23m²(30.01坪)
  • ちょうどいい距離感が魅力のリビング

    ダイニングから少しずらして配置し、緩やかにゾーニングすることで、ほどよい独立性を持たせたリビング。東側にはインナーバルコニーがあり、心地よい光と風を取り込むことができ、空間に広がりをもたらします。ゆったりとした時間が流れるこのリビングには、家族が自然と集まります。

  • 光に包まれる吹抜けダイニング

    ダイニングの上部は吹抜けになっていて、明るく広々とした、気持ちのいい空間です。すぐ横には、お子さまのスタディコーナーにしたり、家事の合間にほっとひと息ついたりと、いろいろ使えてとても便利なカウンターを設置。開放感のある場所で、家族との食事の時間を心ゆくまで楽しめます。

  • 毎日の料理が楽しくなる対面キッチン

    キッチンのすぐ隣にダイニングがあるので、ご飯の配膳やお片付けもスムーズに行えます。カウンタータイプのカップボードや、上部に設けたフレームシェルフには、お気に入りの食器やキッチン家電をディスプレイして楽しめます。「見せる収納」で、自分好みの空間にアレンジできるのも魅力です。

  • 使い勝手に優れた2WAY玄関

    クランクイン玄関を採用しているので、外からの視線を気にせず、安心して暮らせます。土間続きのシューズクローゼットは家族用の玄関も兼ねており、来客用と分けられる2WAY仕様。シューズクローゼットは扉付きで、急な来客時にはサッと閉めて、スッキリとした空間でお迎えできます。

  • 心地よいひとときを過ごせる主寝室

    主寝室には、たくさんの洋服やバッグなどの小物をすっきり整理できるウォークインクローゼットを設けました。反対側にはカウンター付きの書斎スペースがあり、落ち着いた空間で読書を楽しんだり、日記を書いたりと、寝る前のひとときをゆったりリラックスして過ごせます。

  • 開放感いっぱいの共用空間

    2階から3階へ上がる階段から廊下にかけては、吹抜けをぐるりと囲むように配置されています。広々とした開放感のある空間に、ブラックのアイアン手すりがアクセントとなって、全体をぐっと引き締めます。3階の廊下はそのままバルコニーにもつながり、光や風をたっぷり感じられます。