南向きの光に包まれる白を基調としたお家

やわらかな光に包まれた、白を基調とした明るい南向きのお家です。白をベースに素材感で魅せる外観は、やさしさの中にも上質さを感じる佇まい。南向きのバルコニーに面したリビングは、一日を通して心地よい光が差し込む、家族が自然と集まる空間です。大きな開口部からの陽光が白い壁やフローリングにやわらかく反射し、室内を明るく包み込みます。朝は光の中で朝食を囲み、午後はお子さまを見守りながら家事を。夕方にはやわらいだ光の中で、家族がくつろぐ穏やかな時間が流れます。隣には垂れ壁と腰壁でゆるやかに仕切った書斎スペースを設け、程よく集中できる環境に。在宅ワークやお子さまのスタディコーナーとしても活躍します。家族の時間も自分の時間も心地よく整う住まいです。

WORKS
尼崎市

LIVONE高田町

    • 所在地

      尼崎市
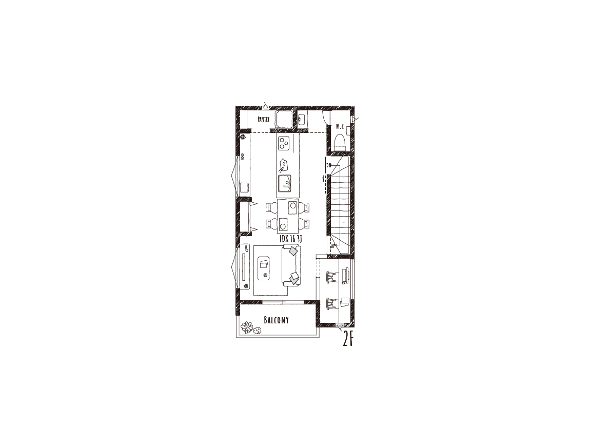
    • 間取り

      2LDK+2S
    • 敷地面積

      56.37m²(17.05坪)
    • 延床面積

      97.91m²(29.61坪)
  • 光と風がやさしく流れるリビング

    南側にバルコニーを設けているので、明るさが広がります。大きな開口から光がたっぷり差し込み、室内全体をやさしく照らします。窓を開ければ心地よい風が通り抜け、開放感のある空間に。リビング階段を採用しているため、家族が自然と顔を合わせる機会が増える、つながりを大切にしたリビングです。
    ※画像はイメージパースのため、実際とは異なる場合があります。

  • 空間にメリハリを生むダイニング・キッチン

    ダイニングとキッチンを横に並べた、食事の準備や後片付けの負担を減らせるレイアウトです。上部は下がり天井とし、空間をゆるやかに区切りました。間接照明のやわらかな光が空間を照らし、あたたかい雰囲気を演出します。奥には冷蔵庫も収まるパントリーを用意し、食材や調理家電を収納できます。
    ※画像はイメージパースのため、実際とは異なる場合があります。

  • ほどよい距離感でこもれる書斎スペース

    2人並んでもゆったり使える、ワイドなカウンターを備えた書斎スペースです。垂れ壁と腰壁でほどよく仕切り、リビングで過ごす家族の気配を感じながら、落ち着いて作業に集中できる環境を整えました。在宅ワーク時のデスクや、子どもたちが並んで勉強できるスタディコーナーとしても活用できます。
    ※画像はイメージパースのため、実際とは異なる場合があります。

  • 来客時にも便利なセカンド洗面

    階段を上がってすぐの場所にある、2階のセカンド洗面です。朝の準備や帰宅後の手洗いも、洗面所の混雑を気にせずスムーズに使えます。来客時にも使いやすく、プライベートな空間を見せずに手洗いができる配置です。上部には吊収納を備え、タオルやストック品などをまとめて収納できます。
    ※画像は弊社施工例です。

  • 収納力のある明るい南向きの主寝室

    南向きのバルコニーに面した、明るく開放感のある主寝室です。朝はやわらかな光がたっぷり差し込み、心地よい目覚めとともに気持ちよく一日を始められます。ウォークインクローゼットにはご夫婦の洋服をまとめて収納できるほか、スーツケースや季節家電など大きな荷物もしっかり収まります。
    ※画像はイメージパースのため、実際とは異なる場合があります。

  • 家事ラクをかなえるランドリー空間

    ガス衣類乾燥機「乾太くん」を備え、毎日の洗濯をしっかりサポートします。共働きで帰宅が遅い日や雨の日でも安心です。となりのサービスルームには室内物干しとカウンターを設置し、ランドリールームとしても使えます。乾いた洗濯物をたたんだり、アイロンをかけたりと、作業が一続きで行えます。
    ※画像はイメージパースのため、実際とは異なる場合があります。

PLANNING

LOCATION & ACCESS

〒661-0963 尼崎市高田町3番23号付近
TOP