ゆったりLDKに小上がりヌックのあるお家

家族時間が広がるLDKに小上がりヌックを設けた、毎日の暮らしにゆとりを生むお家です。シューズクローゼットの入り口やキッチンの下がり天井、小上がりヌックを仕切る垂れ壁にやわらかな曲線を取り入れ、やさしい雰囲気にまとめました。リビングの一角にある小上がりヌックは、子どもの遊び場や宿題スペース、読書やくつろぎ時間にも使える空間。家族が同じ場所にいながら、それぞれの時間を大切にできます。玄関横のシューズクローゼットからファミリークローゼットへ続く動線で、帰宅後はコートやバッグをすぐ収納し、そのまま2階へ。ランドリールームと直結し、ガス衣類乾燥機「乾太くん」で乾かした洗濯物もすぐしまえます。Ⅱ型キッチンは移動距離が短く、配膳や片付けも効率的。家事と子育てを無理なく両立できる住まいです。

WORKS
松原市

LIVONE岡2丁目

    • 所在地

      松原市
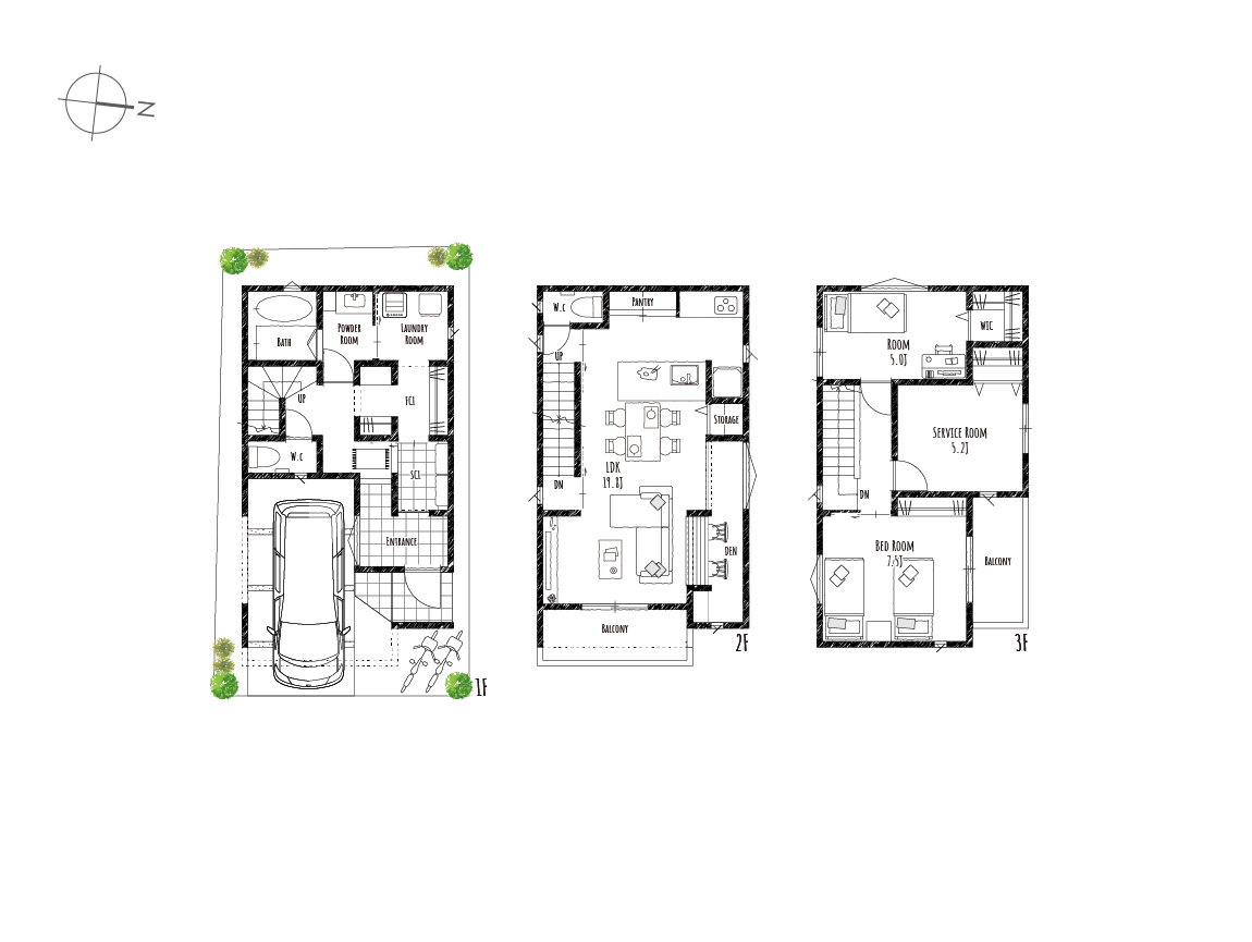
    • 間取り

      2LDK+S
    • 敷地面積

      66.25m²(20.04坪)
    • 延床面積

      105.56m²(31.93坪)
  • ほどよくこもれる小上がりヌック

    リビングの一角に、小上がりのヌックを設けました。やわらかな印象のアールの垂れ壁でゆるやかに仕切り、ほどよいおこもり感を演出。2人並んで使えるカウンターを設け、読書や在宅ワークにも便利です。リビングとつながる配置なので、家族の気配を感じながら自分の時間も大切にできる空間です。
    ※画像はイメージパースのため、実際とは異なる場合があります。

  • つながりを大切にしたやさしいリビング

    バルコニーに面したリビングは、光と風を感じながら心地よく過ごせる空間です。リビングの後ろには小上がりヌック、となりにはダイニングを配置し、リビング階段を採用しました。家族がそれぞれの場所にいながらもコミュニケーションが取りやすく、いつもおたがいの気配を感じられるレイアウトです。
    ※画像はイメージパースのため、実際とは異なる場合があります。

  • 動きやすくスッキリ見えるⅡ型キッチン

    シンクとコンロの移動が少ない、セパレートタイプのⅡ型キッチンを採用しました。扉付き収納を備え、冷蔵庫もダイニング側から見えない位置に配置することで、生活感を抑えたすっきりとした空間に。キッチンからはリビングやダイニングでくつろぐ家族の様子を見守りながら、料理ができます。
    ※画像はイメージパースのため、実際とは異なる場合があります。

  • ただいま動線がスムーズな2WAY玄関

    来客用と家族用を分けられる2WAY仕様の玄関です。家族用の入口はシューズクローゼットを兼ねており、靴やガーデニング用品などをすっきり収納できます。そのまま奥へ進むと、ファミリークローゼットへとつながる動線です。帰宅後はコートをかけ、バッグを置いてから2階のリビングへ上がれます。
    ※画像はイメージパースのため、実際とは異なる場合があります。

  • 家族の動きが重ならない水廻りスペース

    洗面室とランドリールームを分けることで、使いやすさに配慮しました。だれかが洗面台を使っていても、洗濯がしやすい設計です。ランドリールームにはガス衣類乾燥機「乾太くん」を設置。さらに隣にファミリークローゼットをつなげました。乾燥後の衣類をそのまま収納でき、移動の手間を減らします。
    ※画像はイメージパースのため、実際とは異なる場合があります。

  • 広がりを感じる3面開口の主寝室

    3面開口の主寝室は、バルコニーにも面した開放感あふれる空間です。朝はやわらかな光が差し込み、窓を開ければ心地よい風が通り抜けます。収納には扉のないオープンクローゼットを採用。衣類をサッと取り出せるため、朝の準備もスムーズに行えます。広がりと機能性を兼ね備えたゆとりの空間です。
    ※画像はイメージパースのため、実際とは異なる場合があります。

PLANNING

LOCATION & ACCESS

〒580-0014 松原市岡2丁目12番4号 付近
TOP